Ingatlan nem található az adatbázisunkban

Nagykanizsán az Ipari parkban, kiadó raktárhelység

2264 Nyomtatás Ajánlás Facebook

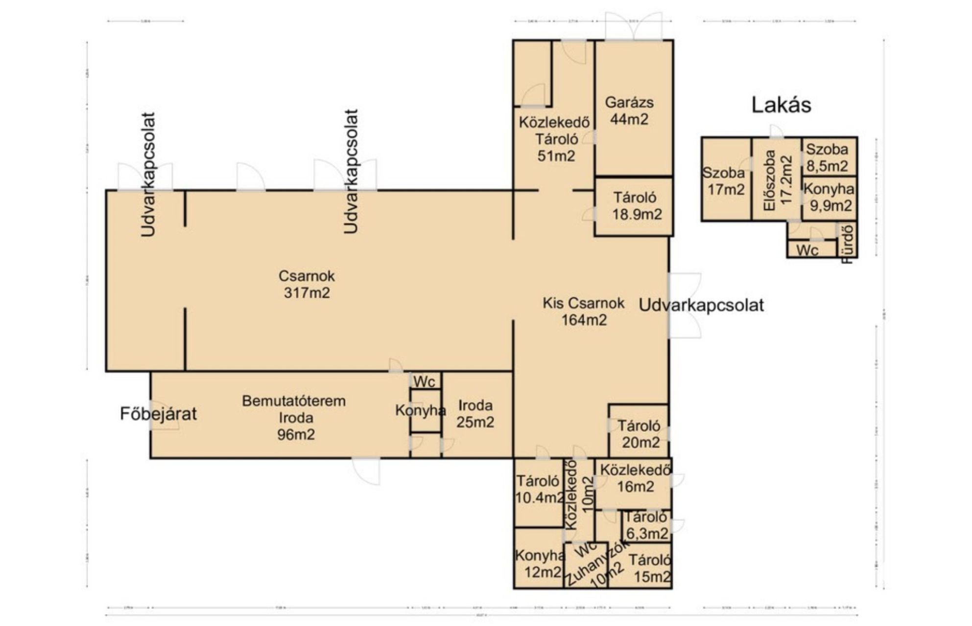
Ipari ingatlanban kiadó raktárhelység!
FONTOS: Az ingatlan nagyobb része már bérbeadásra került csak egy 50m2-es raktárhelység maradt szabadon.
Ez az megmaradt helység ideális választás lehet raktárnak, műhelynek vagy akár kisebb gyártó egységnek. Ne hagyja ki ezt a remek lehetőséget!
Minden esetben a bérleti jogviszony megkezdéséhez, 1 havi bérleti díj és 2 havi kaució szükséges.
Kizárólag a Városi Ingatlaniroda kínálatában!!!
Kulcs az irodában.
Iroda: Nagykanizsa Platán sor 7

Hohl József
PRÉMIUM

Hohl József

10 éve a Városi Ingatlaniroda tagja
Régióigazgató
Nagykanizsa
+36 (30) 608 6857
Észrevétel a hirdetéssel kapcsolatban
Egy ingatlanos naplója