Kiadó közel 1000m2-es üzlethelység a Belvárosban!

1367 Nyomtatás Ajánlás Facebook

Kiadó egyedi üzlethelyiség Nagykanizsa belvárosában!

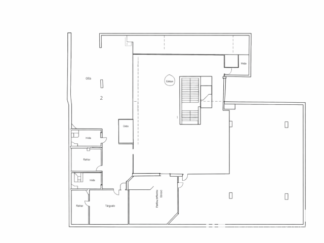
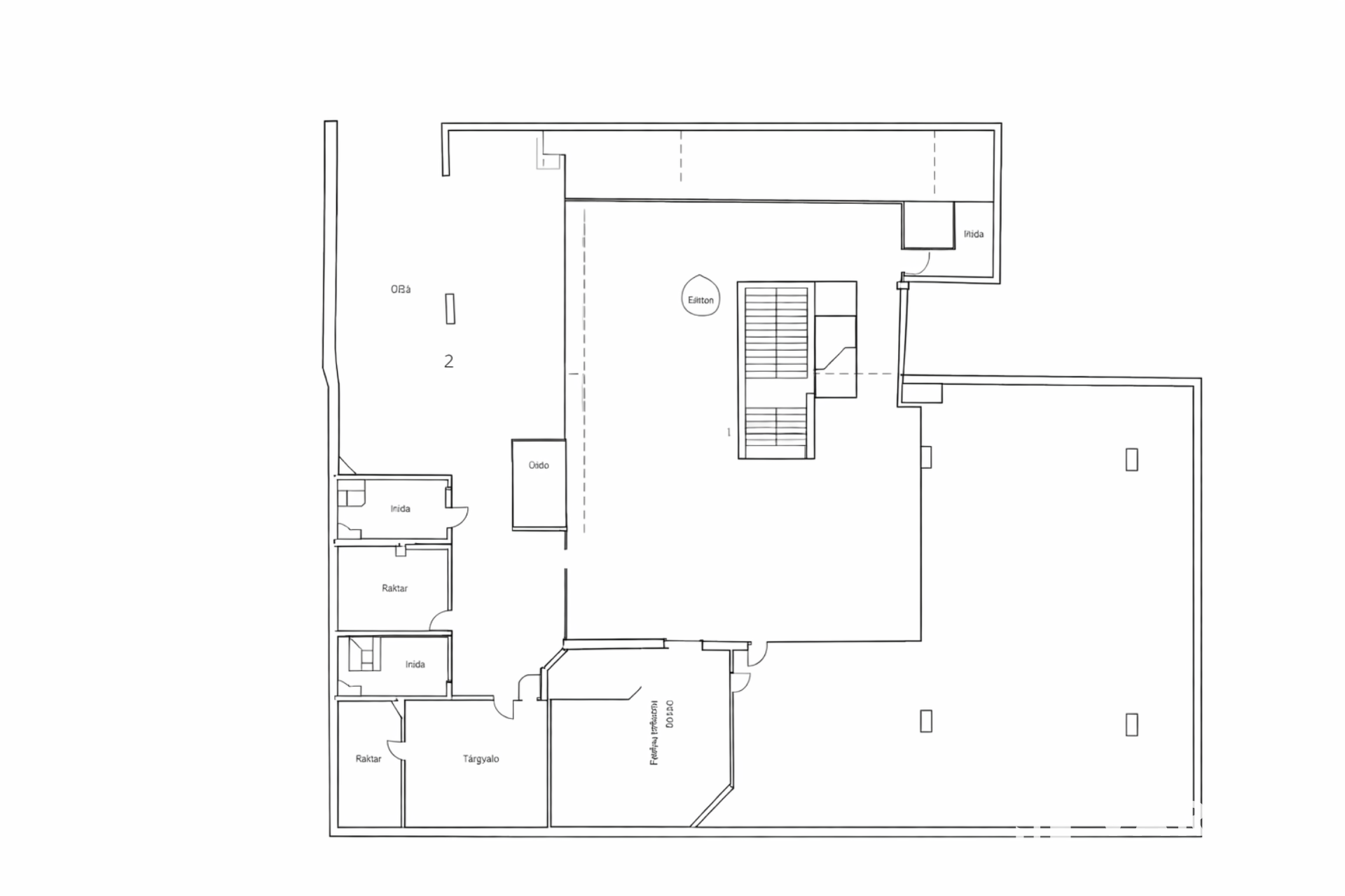
Elérhetővé vált egy kiváló elhelyezkedésű, 978 m² alapterületű üzlethelyiség Nagykanizsa szívében, a Belváros városrészben. Az ingatlan egy épület 2. szintjén található, így bőséges teret és rugalmasságot biztosít különböző vállalkozási tevékenységek számára.
Az üzlethelyiség átlagos állapotú, de számos modern kényelmi funkcióval rendelkezik, mint például új villamoshálózat, riasztórendszer és dekorvilágítás, amelyek hozzájárulnak az ideális munkakörnyezet megteremtéséhez.
A közlekedési kapcsolatok kitűnőek, így a helyszín könnyen megközelíthető mind gyalogosan, mind tömegközlekedéssel. További kényelmet nyújt, hogy az épület udvari része gépjárműbeállási lehetőséget biztosít, ami különösen előnyös a mindennapi ügymenet szempontjából.
Ez az ingatlan nagyszerű lehetőség mindazok számára, akik egy jól megközelíthető, tágas és sokoldalú üzlethelyiséget keresnek Nagykanizsa központjában. Ne hagyja ki ezt a remek ajánlatot!
Bérleti díj: 1.000.000 Ft / hó a jogviszony megkezdéséhez 2 havi kaució szükséges.
Iroda: Nagykanizsa Platán sor 7

Hohl József
PRÉMIUM

Hohl József

10 éve a Városi Ingatlaniroda tagja
Régióigazgató, ingatlanértékesítő
Nagykanizsa
+36 (30) 608 6857
Észrevétel a hirdetéssel kapcsolatban
Egy ingatlanos naplója