Eladó ipari ingatlan Nagykanizsán az Ipari parkban!

2489 Nyomtatás Ajánlás Facebook

Eladó Ipari Ingatlan Nagykanizsa Északi Városrészében a folyamatosan fejlődő Ipari Parkban!
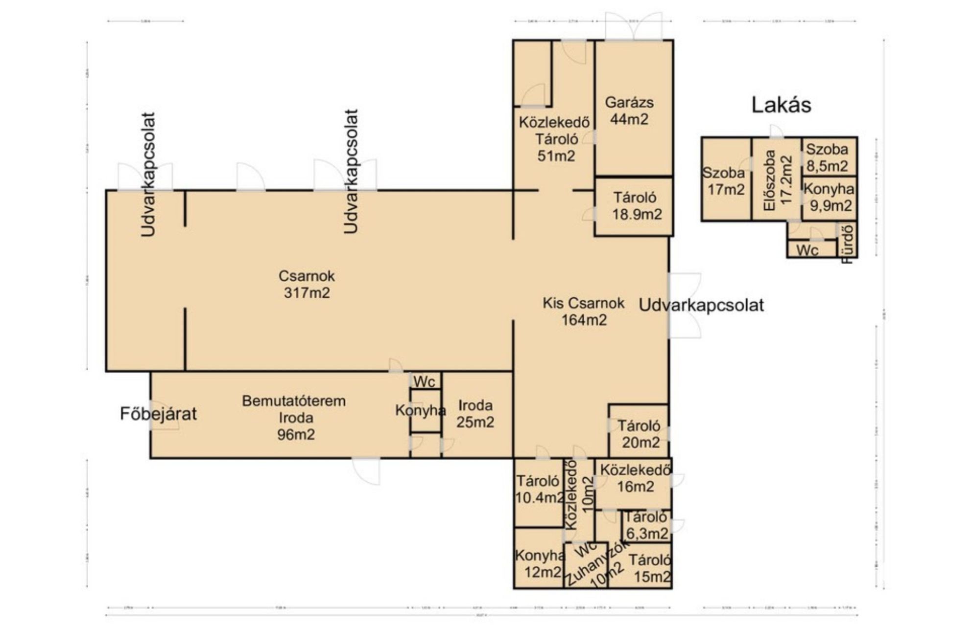
Fedezze fel ezt a kivételes lehetőséget Nagykanizsa Északi városrészében, ahol egy közel 900 m²-es ipari ingatlan várja új tulajdonosát.
Az ingatlan egy közel 3500 m²-es parkosított telken fekszik, amely ideális választás mind kereskedelmi, mind ipari tevékenységek számára.
Főbb jellemzők:
- Belső tér : 900 m² terület áll rendelkezésre, földszinti elhelyezkedéssel, mely átlagos állapotú és azonnal használatba vehető.
- Telekméret: Az impozáns, 3426 m²-es telek bőséges helyet biztosít, beleértve egy kerti tavat és lakható melléképületet is. (Lakás)
- Korábbi felújítások: Az ingatlan új nyílászárókkal és villamoshálózattal rendelkezik, valamint klíma és riasztó rendszer gondoskodik a komfortos és biztonságos környezetről.
- Fűtésrendszer: klímák (hűtő-fűtő egységek), egyedi gáz cirkókazán radiátorral, gázos hőlégfújók.
- Közművek: Víz, villany, gáz, valamint háromfázisú áram elérhető, (3 x 50A )ami különösen előnyös ipari tevékenységeknél.
- Biztonság: Kamera rendszer vigyázza az ingatlant, így Ön nyugodtan dolgozhat.
- Kényelem: Bemutatóterem, irodahelységek, teakonyha, konyha, szociális helységek, személyzeti öltöző, külön fürdő és WC szolgálja a bérlők kényelmét.
- Parkolás: Igény szerint akár a teljesen zárt saját udvarban teherautóval való parkolás is megoldott valamint az épület előtt számos gépkocsinak ki lett alakítva térkő burkolattal ellátott parkoló.
Fontos: az épület melletti saját körbekerített terület, betonozott, ezért gépek, teherautók, vasárú, építőanyag vagy bármi tárolására, amire egy vállalkozásnak szüksége lehet, tökéletesen alkalmas.
- Közlekedés: Az ingatlan kiváló közlekedési kapcsolatokkal rendelkezik, így könnyen megközelíthető. (1-2 percre az M7- es autópálya)
Ez az ingatlan ideális választás lehet raktárnak, műhelynek vagy akár kisebb gyártó egységnek. Ne hagyja ki ezt a remek lehetőséget!
Kizárólag a Városi Ingatlaniroda kínálatában!!!
Kulcs az irodában.
Ingatlan beszámítás megoldható!
Iroda: Nagykanizsa Platán sor 7

Hohl József
PRÉMIUM

Hohl József

10 éve a Városi Ingatlaniroda tagja
Régióigazgató, ingatlanértékesítő
Nagykanizsa
+36 (30) 608 6857
Észrevétel a hirdetéssel kapcsolatban
Egy ingatlanos naplója