Csendes, kertvárosi otthon nagy telek, felújított ház.

34 Nyomtatás Ajánlás Facebook

Győr kedvelt, nyugodt részén, Győr–Likócson eladó egy tágas 160m2-es kétszintes családi ház 1459 m²-es telken, amely ideális választás azoknak, akik városi közelség mellett szeretnének nyugodt, zöld környezetben élni.
Az ingatlan 2022-ben felújításon esett át, így új tulajdonosa számára további nagyobb ráfordítás nélkül költözhető.
________________________________________
🏡 Kinek ideális?
• 2–3 gyermekes családoknak
• akik nagy kertet és biztonságos környezetet keresnek
• akiknek fontos a jó megközelíthetőség (város, munkahely)
• több generáció együttélésére is alkalmas
________________________________________
🌿 Ami igazán kiemeli a kínálatból
• 1459 m²-es, használható telek – nem csak szép, hanem élhető (kertészkedés, gyerekek, pihenés)
• 45 m²-es fedett terasz – családi összejövetelek, nyári esték helyszíne
• világos, jól élhető terek – külön nappali és nagy konyha-étkező
• több szoba, jó elosztás – minden családtagnak saját tér
• felújított állapot – nincs azonnali felújítási kényszer
________________________________________
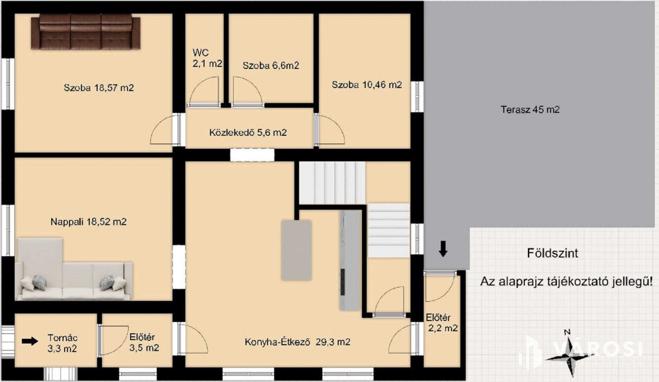
🏠 Elrendezés röviden
Földszint:
• tágas konyha-étkező (a családi élet központja)
• külön nappali
• több szoba (vendég, dolgozó vagy gyerekszoba)
• fürdő + külön WC
Emelet:
• nagy méretű hálószoba
• további szobák
• fürdő + WC
• loggia
________________________________________
⚙️ Műszaki háttér
• tégla építés, stabil szerkezet
• 2022-es felújítás
• hőszigetelés, hőszigetelt nyílászárók
• kondenzációs gázkazán fűtésre és melegvíz ellátásra
• az emeleten 3,5 KW hűtő-fűtő klíma
• rendezett kertészkedésre alkalmas kert gyümölcsfákkal
• elektromos kapu
________________________________________
💬 Miért jó döntés?
Ez a ház azoknak szól, akik nem építkezni akarnak, hanem költözni, és fontos számukra:
• a nyugalom
• a tér
• és egy valóban használható kert

Az alábbiakkal tudjuk segíteni a gyors és megbízható ügyintézést:
-bankfüggetlen hitelügyintézés, CSOK plusz, Otthon Start hitel
-energetikai tanúsítvány
-értékbecslés
-ügyvédi szerződések, jogi tanácsadás

Külső képekért és időpont egyeztetésért kérem hívjon, akár hétvégén is!

Oszoli Péter

Oszoli Péter

Ingatlanértékesítő
Győr
+36 (70) 203 1337
Észrevétel a hirdetéssel kapcsolatban
Egy ingatlanos naplója