Végre megérkezett haza, Kartalra!

1584 Nyomtatás Ajánlás Facebook

Kartalon, a kisgyermekes családok paradicsomában, a Szirom lakóparkban!

Kartalon, a Szirom utcában 2026 év elején induló építkezés, bruttó 122m2-es, nappali+4 szobás családi ház 797m2-es telekkel ELADÓ!

Nagyszerű kivitelezés verhetetlen áron! Több, már átadott referencia munkát is tudok mutatni a közeli településen!
Jelenleg 2 építkezés van folyamatban ahol a minőséget és a precizítást is ellenőrizni lehet Hévízgyörkön!
Napfényes, tágas terek, jó elrendezés és alakíthatóság jellemzi az ingatlant! Igazi álomotthon válhat belőle az Ön elképzelései alapján!
Az építkezés szerződéskötéskor indul és rövid 6-8 hónap alatt befejezhető! A kivitelezés még a tervezés folyamatában van így az ingatlan még tervezhető és alakítható!

Az Ön elképzelési szerint még alakítható:
-belső elrendezés(a külső és a belső teherhordó falak fixek)
-belső fal és padlóburkolatok, szaníterek, belső ajtók, külső nyílászárók
-külső burkolatok, színvilág
-utcafronti kerítés
-klímák és a fűtési rendszer (gázfűtés vagy hőszívattyús rendszer) is az Ön elképzelései szerint valósítható meg természetesen az árak előre történő megbeszélését követően

Foglalja el új lakhelyét még 2026-os év közepén, legyen élménydús a 2026-os nyár!
Több éves szakmai gyakorlat, lekérhető referenciamunka a kivitelező részéről, így biztos lehet benne, hogy megfelelő kezekbe került az ingatlan építése!
A környező utcák, szomszédos házak rendben tartottak, szimpatikus és barátságos szomszédokkal.

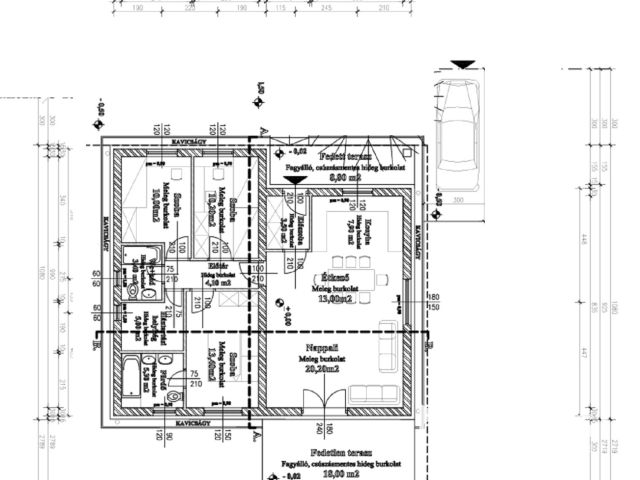
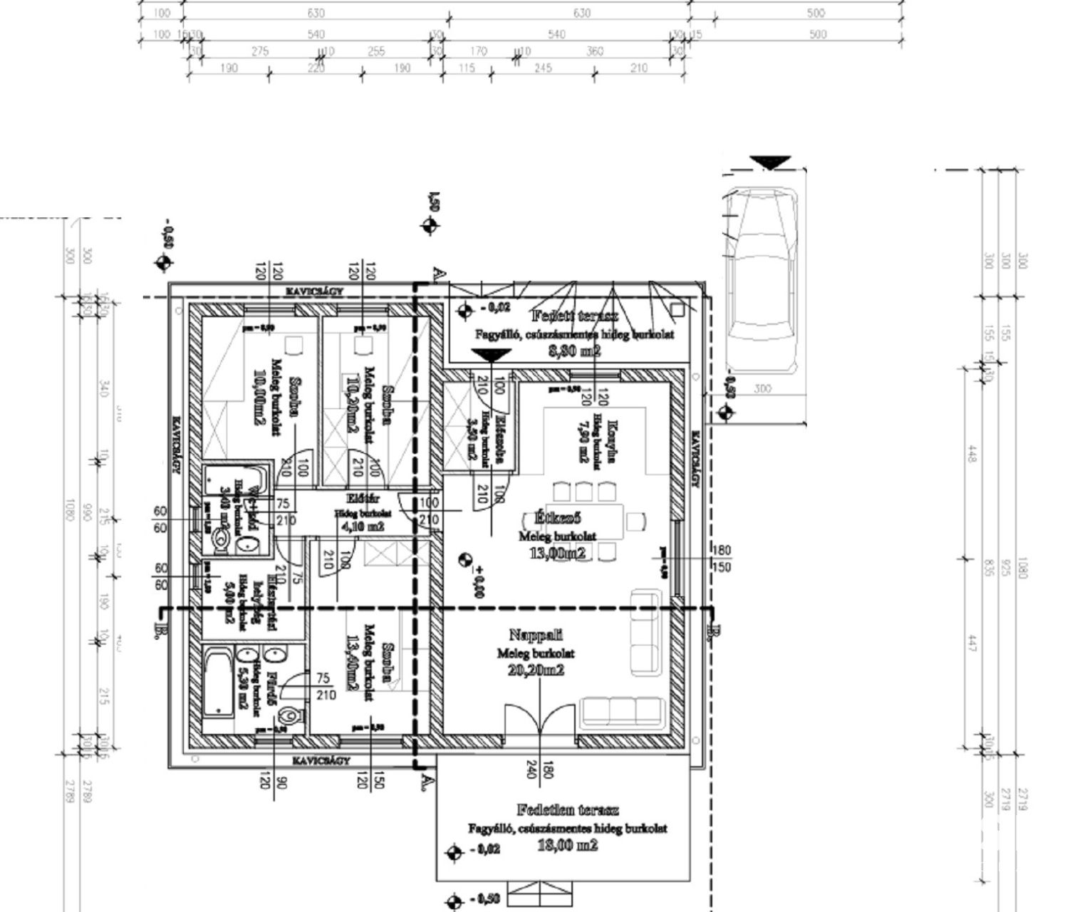
A családi ház és a telek főbb adatai:
-bruttó 122nm-es családi ház (nettó 100nm-es) 4 lakószobával, fürdőszobával, külön wc-vel, háztartási helyiséggel, közlekedővel és amerikai nappalis konyhával.
-30-as Porotherm téglából épül
-15cm Külső Hőszigetelés
-20cm Födémszigetelés
-9nm fedett terasz a bejárat, 18nm sima terasz a nappali mentén
-20nm fedett kocsibeálló
-műanyag nyílászárók 3 rétegű/ 7 légkamrás Thermo kivitelben
-belső elrendezése kialakítása elképzelése szerint alakítható jelen állapotban.
-2026-ös év elején indul el az építkezés.
-befejezése szerződés megkötését követően 6-8 hónapon belül megtörténik.
-belső burkolatok, belső és külső színvilág az építés folyamán egyedileg választhatóak.
-gáz cirkó(padlófűtés), minőségi műanyag nyílászárók és bejárati ajtók, igényes szaniterek kerülnek beépítésre.
-3db klíma a nyári hőség enyhítésére
-igényes tervezés és természetesen precíz kivitelezés!
-valósítsa meg álmai családi házát egy elismert kivitelező csapattal!
-a hozzá tartozó telek 797m2-es
-árgarancia

Közlekedése:
-busz 15 perc alatt elérhető egy könnyed sétával.
-Budapest 35 perc alatt az M0-ás körgyűrű segítségével pedig szinte az összes autópálya és nagyobb város viszonylag gyorsan érhető el autóval.

Legyen az lakhatás vagy csak befektetési lehetőség, bármit keres, itt megtalálhatja számításait.
Jöjjön el, nézze meg és lássa meg a benne rejlő potenciált!
Csendes, madárcsicsergős környék rendkívül barátságos szomszédokkal.
Nagyszerű választás, szuper ár-érték arányban, igazi álomotthon.
Minden nap elérhető vagyok, hívjon, egyeztessünk időpontot az ingatlan megtekintésére!
Örömmel segítünk Önnek leendő OTTHONUK vagy BEFEKTETÉSÜK megtalálásában, miközben jelenlegi ingatlanuk értékesítését is zökkenőmentesen lebonyolítjuk Magyarország egész területén!
Keressen minket bizalommal!

Porkoláb Dániel
PRÉMIUM

Porkoláb Dániel

2 éve a Városi Ingatlaniroda tagja
Ingatlanértékesítő
Budapest
+36 (70) 671 7702
Észrevétel a hirdetéssel kapcsolatban
Egy ingatlanos naplója