Újszegedi,nyugis,zöld-környezetben ház eladó.

139 Nyomtatás Ajánlás Facebook

Újszegedi,nyugis,zöld-környezetben ház eladó.
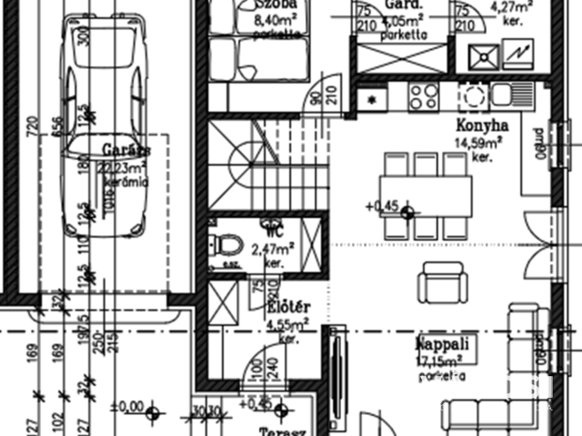
Az ingatlan fantasztikus helyen a Tisza-Maros torkolatától pár perc sétára a Töltés közvetlen közelében az Újszegedi Maros-liget lakóparkban található.A nappali plusz három szobás kétszintes ikerház rendkívül jó kialakítású hiszen ami ritkaság,hogy a földszinten is található hálószoba ami saját tusolós fürdőszobával és gardróbbal rendelkezik.Az emeleti két szoba,tágas és szép benapozású,természetesen emeleti fürdőszobával és külön WC-vel.Az ikerház saját 153 négyzetméteres kertel,illetve 22,23 négyzetméteres garázzsal rendelkezik.A teraszok méretét tekintve az utcafronti nappalival összekapcsolt terasz 15 négyzetméter az oldal fronti főbejárati fedett terasz pedig 3,01 négyzetméter.Gépészetét tekintve,vizes-rendszerű padlófűtés szolgáltatja a fűtést,elektromos Bosch kazánnal a hűtést pedig mind két szinten klíma biztosítja.Jelen pillanatban még folynak a munkálatok a kerítés kialakítását végezve.Fontos megjegyeznem,hogy a kulcsrakész árban a konyhabútor nincs benne.
Az ingatlannal kapcsolatban bármilyen kérdése felmerülne,keressen bizalommal:Laczkó Szabolcs +36707713137

Laczkó Szabolcs
PRÉMIUM

Laczkó Szabolcs

6 éve a Városi Ingatlaniroda tagja
Ingatlanértékesítő
Szeged
+36 (70) 771 3137
Észrevétel a hirdetéssel kapcsolatban
Egy ingatlanos naplója