Új építésű, prémium, 91 m2-es családi ház kerttel eladó

4072 Nyomtatás Ajánlás Facebook

Új építésű, prémium, 91 m2-es családi ház kerttel eladó

Eladásra kínálok Békéscsaba belvároshoz közeli csendes utcájában 3 db, 2025-ös építésű, 2026-os nyár eleji átadású egy szintes, minden igényt kielégítő családi házat. Tökéletes választás mindazok számára, akik értékelik a városi élet kényelmét, ugyanakkor nyugodt, minőségi és könnyen fenntartható otthont keresnek.

A kivitelező vállalkozó, közel 30 éves építőipari múlttal és megbízható szakmai háttérrel rendelkezik, ez által garantálva Önnek a minőségi és "stresszmentes" végeredményt.

Jelenleg elérhető ingatlanok:
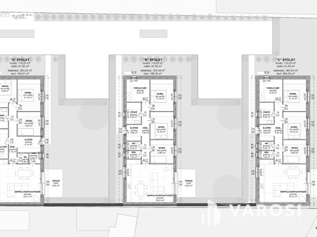
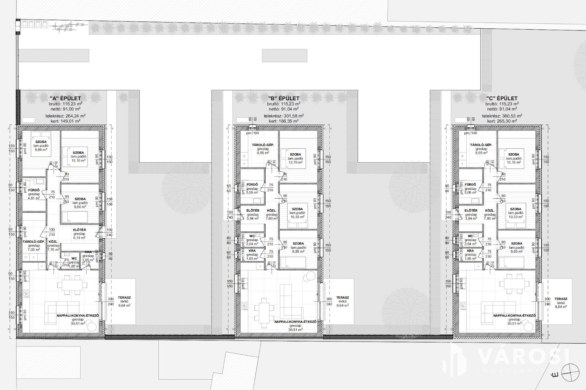
"A" épület: 91,00 m2 lakórész / 149,01 m2 kert / 264,24 m2 telek
"B" épület: 91,04 m2 lakórész / 186,35 m2 kert / 301,58 m2 telek

Már elkelt:
"C" épület: 91,04 m2 lakórész / 265,30 m2 kert / 380,53 m2 telek

Elrendezés és méretek (háztól függően):
+ Amerika konyhás nappali: 30,51 m2
+ 3 db szoba: 9 + 10 + 12 m2
+ Fürdő: kb 5 m2
+ Külön WC: 2 m2
+ Közlekedő: 8 m2
+ Tároló / gépészet: 7 m2
+ Közlekedő: 7,7 m2

Minőségi kivitelezés:
A ház prémium anyagok felhasználásával készül, külső hőszigeteléssel ellátott (15 cm), födémben 26 cm hőszigetelés, 3 rétegű nyílászárókkal, elektromos redőnnyel kerül átadásra minőségi termékekből. Mindez hozzájárul az otthon melegének és magánszférájának megőrzéséhez.

Gépészet:
Fűtés: Levegő-víz hőszivattyú + padlófűtés
Hűtés: légkondicionáló

Parkolási lehetőség:
Az ingatlanhoz tartozó beállónak köszönhetően az autóját is megfelelő helyen és biztonságban tudhatja.

Elhelyezkedés:
A belváros közelsége kiváló közlekedési kapcsolatokat biztosít, így a mindennapi ügyintézés és szórakozás, vagy akár a "családi logisztika" is gyorsan és egyszerűen megoldható.

Vételár:
Középeső / "B" épület: 90.000.000 Ft
Utcafronti / "A" épület: 85.000.000 Ft

Ne hagyja ki ezt a ritka lehetőséget!
További részletekkel kapcsolatban várom hívását!

Üdvözlettel,
Szabó Péter
30/441-9282

Szabó Péter
PRÉMIUM

Szabó Péter

5 éve a Városi Ingatlaniroda tagja
Ingatlanértékesítő
Békéscsaba
+36 (30) 441 9282
Észrevétel a hirdetéssel kapcsolatban
Egy ingatlanos naplója