Új építésű, 77 m2-es, 1. emeleti lakás, liftes házban eladó

2604 Nyomtatás Ajánlás Facebook

Új építésű, 77 m2-es, 1. emeleti lakás, liftes házban eladó

Kivételes lehetőség Békéscsaba szívében!

Eladásra kínálok egy 2025/2026 építésű, első emeleti tégla lakást.
Az ingatlan a 77 m²-es méretének köszönhetően kényelmes életteret biztosít a mindennapokhoz.
Tökéletes választás mindazok számára, akik egy modern, kényelmes és jól megközelíthető otthont keresnek Békéscsaba belvárosában.

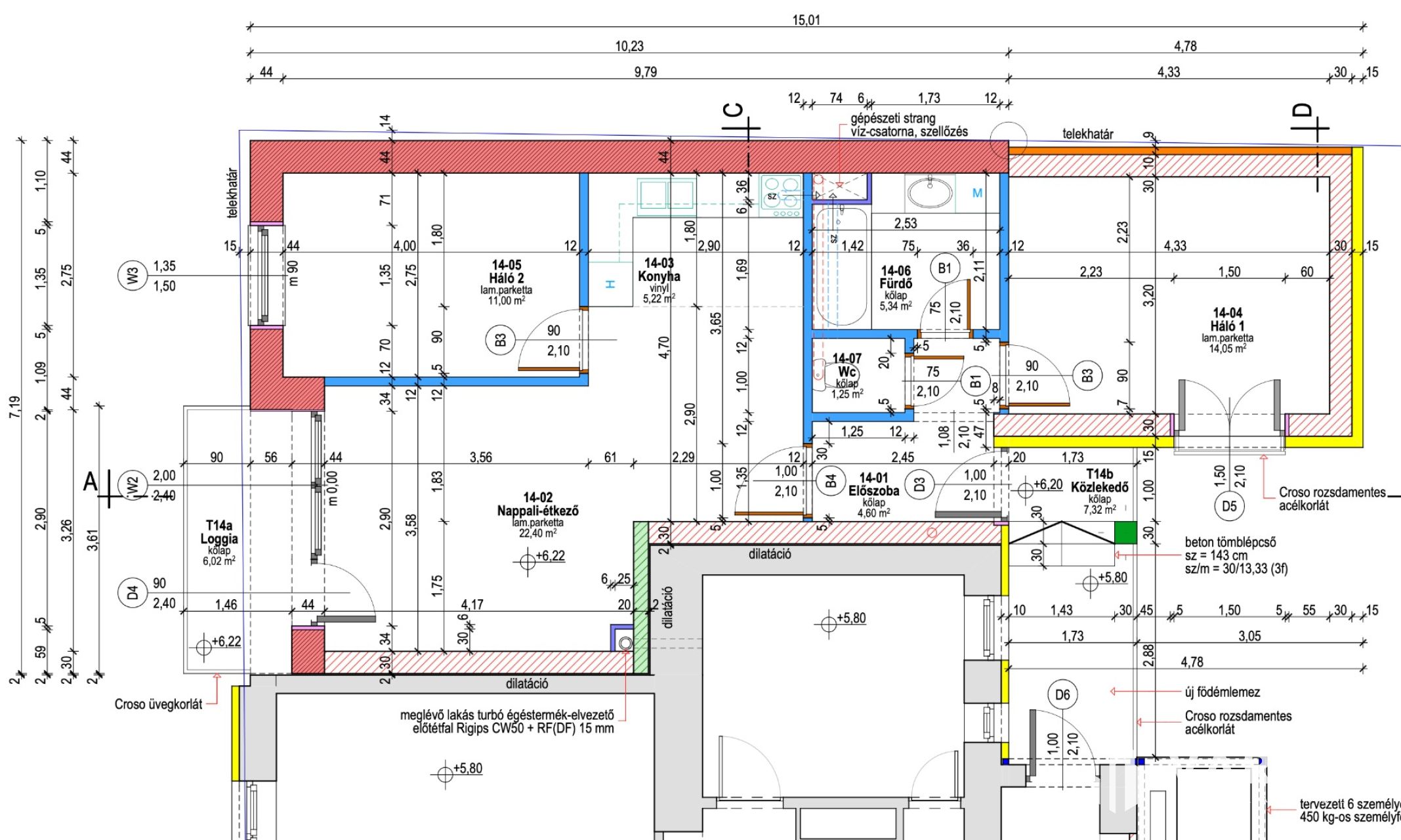
Helyiségek kiosztása:
+ Nappali és étkező: 22,4 m2
+ Konyha: 5,22 m2
+ Háló 1: 14,05 m2
+ Háló 2: 11 m2
+ Fürdő: 5,34 m2
+ WC: 1,25 m2
+ Közlekedő: 7,32 m2
+ Előszoba: 4,6 m2
+ Loggia: 6,02 m2
Összesen: 77,02 m2

Műszaki adatok:

Hőszigetelés:
10 cm a külső falakon, az emeleti lakásoknál a padlóban pedig 5 cm (2 cm hőszigetelés + 3 cm lépésálló hőszigetelés), a földszinten 8 cm

Falazat:
Külső térelhatároló falak: Porotherm 44 klima és 25, 30-as N+F falazóblokkból készülnek.
Válaszfalak: 10 cm-es gipszkartonból, 75-ös hangszigetelő paplannal.

Nyílászárók: I. osztályú borovi fenyőből
Beltéri ajtók: Beltéri ajtók Porta Doors 3D fóliás ajtók, vagy ennek megfelelő más gyártású ajtó.

Fűtés-Hűtés
A fűtést és a hűtést Multisplit Klimák látják el a lakó szobákban, a fürdőkben és előterekben elektromos fali melegítők lesznek felszerelve.

Szellőztetés:
A vizes blokkok Helios ventilátoros szellőztetéssel lesznek ellátva, homlokzatra vagy tető fölé kivezetve.
A konyhai szagelszívó homlokzatra kivezetve készülnek.

Vételár: 69.480.000 Ft

Megjegyzés:
Az épületen belül a konyhabútort, beépített szekrényeket és kamrapolcot a vételár nem tartalmazza, de természetesen külön kérésre ezek is legyártásra és beszerelésre kerülnek.

Amennyiben szeretne Ön vagy családtagja egy modern, belvárosi lakásban élni, megtalálta új otthonát.

További részletekért és időpont egyeztetésért várom megtisztelő hívását!

Üdvözlettel,
Szabó Péter
30/441-9282

Szabó Péter
PRÉMIUM

Szabó Péter

5 éve a Városi Ingatlaniroda tagja
Ingatlanértékesítő
Békéscsaba
+36 (30) 441 9282
Észrevétel a hirdetéssel kapcsolatban
Egy ingatlanos naplója