Recsk csendes utcájában részben felújított családi ház eladó

5304 Nyomtatás Ajánlás Facebook

Igényes és rendezett otthont keres, amely azonnal költözhető? Akkor erre van szüksége!

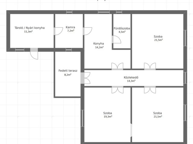
Ez az egyszintes, 100 m²-es lakótérrel rendelkező ingatlan ideális választás mindazok számára, akik csendes, zöldövezeti környezetben szeretnének otthonra találni. A nagy, 1030 m²-es kerítéssel körülhatárolt telek bőséges lehetőséget kínál kertrendezésre vagy akár további építkezésre is.

Az otthon három tágas szobával és egy modern fürdőszobával rendelkezik, így kényelmes életteret biztosít mind a családtagok, mind vendégek számára. Remek elosztása miatt egymás zavarása nélkül megközelíthető bármelyik szoba.

Az ingatlan alacsony fenntartási költségekkel bír, köszönhetően a vízteres kandallónak, az új gázcirkónak és az új villamoshálózatnak. A ház új nyílászárókkal és redőnyökkel van felszerelve, amelyek hozzájárulnak a hőszigeteléshez és a nyugalmas, zavartalan pihenéshez.

Az udvari gépjárműbeálló lehetőséggel rendelkező ingatlan jól megközelíthető, és a jó közlekedési feltételek miatt ideális választás azoknak, akik a nyugodt falusias környezetet ötvöznék a város közelségének kényelmeivel. A kertkapcsolatos kialakítás, a melléképület, valamint a fúrt kút további praktikusságot és szabadidős lehetőségeket kínál.

A szúnyoghálóval felszerelt ablakok tovább növelik a komfortérzetet az otthonban, és garantálják a zavartalan pihenést a melegebb hónapokban is. A háromfázisú áram pedig biztosítja az otthon minden igényét kielégítő elektromos ellátást.

Ne hagyja ki ezt a remek lehetőséget! Vegye fel velünk a kapcsolatot még ma, és tekintse meg személyesen ezt a kiváló adottságokkal rendelkező ingatlant Recsk egyik legkedveltebb részén!

Fekete Mátyás

Fekete Mátyás

1 éve a Városi Ingatlaniroda tagja
Ingatlanértékesítő
Parád
+36 (30) 474 0685
Észrevétel a hirdetéssel kapcsolatban
Egy ingatlanos naplója