Privát élettér és wellnes-Exkluziv ház a Magdolnavölgyben

1527 Nyomtatás Ajánlás Facebook

- Privát élettér és wellnes-Exkluziv ház a Magdolnavölgyben

A budai agglomeráció egyik legkeresettebb, zárt és biztonságos lakóparkjában, a Magdolnavölgyben, kínálunk megvételre egy kiemelkedő adottságokkal rendelkező, többgenerációs családi házat, amely klasszikus stílusban a nyugalom, a funkcionalitás és a korszerű technológia tökéletes egyensúlyát teremti meg.

A lakópark különlegessége, hogy portán át közelíthető meg, teljesen körbekerített, valamint saját vasúti megállóval rendelkezik a Budapest–Esztergom vonalon, így a természet közelsége kiváló közlekedéssel párosul.

-A ház maga – tér, fény és sokoldalúság

A 325 m²-es ( 250 m2 lakótér- 40 m2 medencetér- 35 m2 Pince-tároló), háromszintes otthon minden részletében a tudatos tervezés és a kényelmes, többfunkciós használat jegyében született.
A földszinten található, nagyvonalú nappali–étkező–konyha tér a családi élet központja, amelyet a tágasság és a természetes fény tesz igazán élhetővé. A két, saját fürdőszobával rendelkező nagy hálószoba privát lakrészként is értelmezhető.
Az ingatlan különleges eleme a fedett, fűthető, ellenáramoltatós medence, amely egész évben biztosítja a wellness élményt, az otthon kényelmén belül.
- Többgenerációs lehetőségek

Az ingatlan egyik legnagyobb értéke a több, egymástól jól elkülöníthető élettér:
a külön bejáratú minigarzon (ideális vendégeknek vagy idős családtagnak önálló lakrészként)
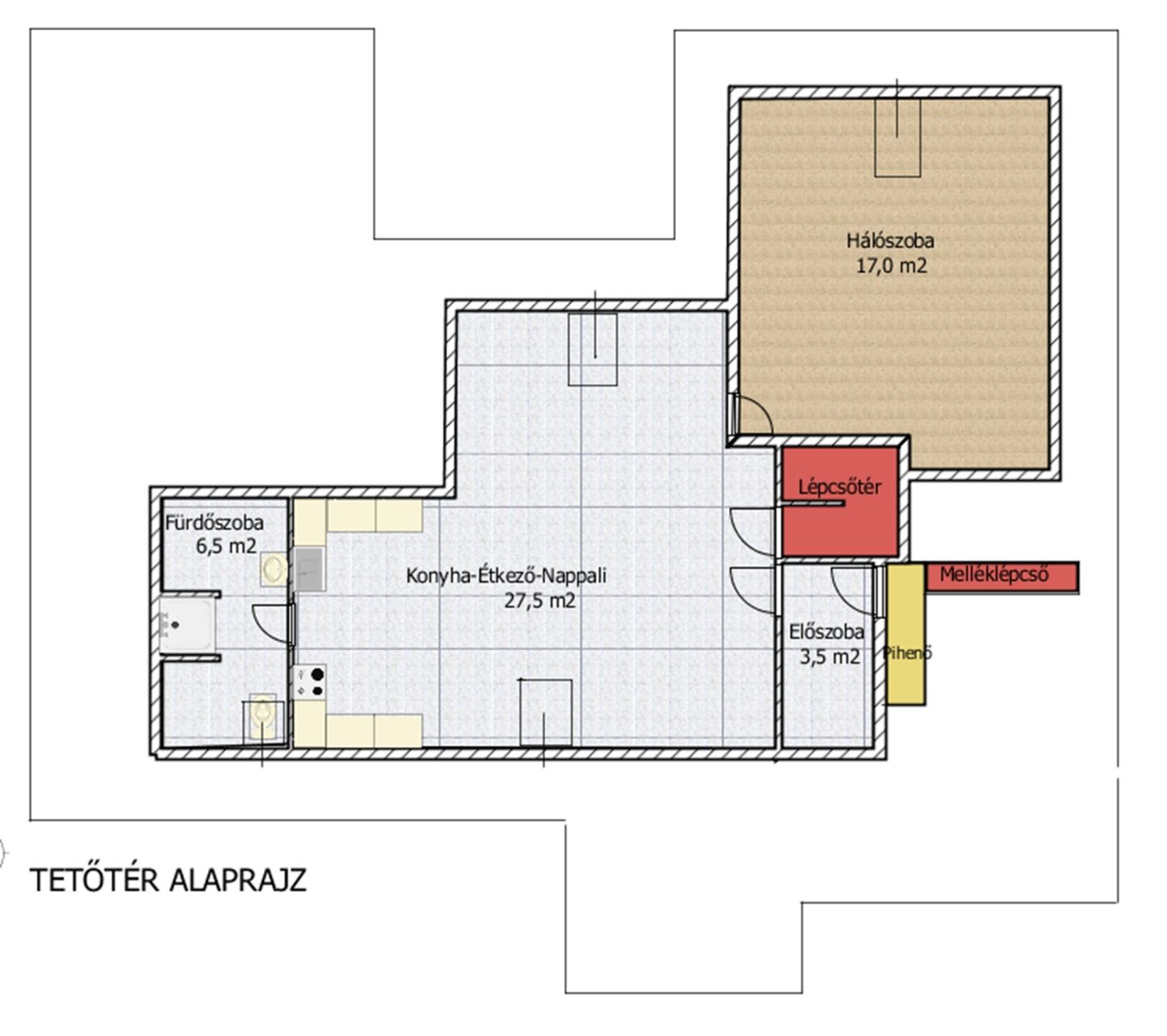
a tetőtéri lakrész saját nappalival, hálóval és fürdővel ideális privát szférát igénylő felnövő gyermekünknek.
belső és külön lépcsős megközelítéssel
Ez a kialakítás lehetővé teszi az együttélést kompromisszumok nélkül.

- Műszaki tartalom – korszerű és gazdaságos

A ház műszaki színvonala kiemelkedő:
gázkazán által működtetett padló-, fal- és radiátoros fűtés
medencefűtés és klimatizálás, dupla gáz kedvezményes rezsikeret!
A+ energiahatékonyság
napelem rendszer, amely a teljes elektromos fogyasztást fedezi
- alacsony fenntartási költségek, magas komfortszint mellett

- Kert – privát zöld környezet

A gondosan kialakított kert intim, park jellegű életteret kínál:
dísz- és gyümölcsfák, kerti pihenő, tároló, grillező hely
rendezett gyep és növényzet
automata öntözőrendszer vízgyüjtő ciszternával és saját kúttal

A kültéri tér ideális családi élethez, pihenéshez vagy akár reprezentatív vendéglátáshoz.

- Kényelem és funkcionalitás
kétállásos garázs
ház előtt és udvarban + parkolás

Ez az ingatlan nem csupán egy ház, hanem egy átgondolt, hosszú távra tervezett élettér, ahol a Klasszikus stílus, a kényelem és a modern energiahatékonyság találkozik.

Ideális választás azok számára, akik minőségi, többgenerációs otthont keresnek kompromisszumok nélkül, egy exkluzív, zárt lakókörnyezetben.
Az ár irányár
-További információ és személyes megtekintés kizárólag előzetes egyeztetés alapján.
Hívjon bizalommal- Bármikor

Borsi Péter

Borsi Péter

Ingatlanértékesítő
Piliscsaba
+36 (30) 916 2201
Észrevétel a hirdetéssel kapcsolatban
Egy ingatlanos naplója