Kiadó ipari létesítmény Békéscsaba kereskedelmi övezetében

430 Nyomtatás Ajánlás Facebook

KIADÓ IPARI CSARNOK – BÉKÉSCSABA IPARI ÉS KERESKEDELMI ÖVEZETÉBEN

Modern infrastruktúrával rendelkező, azonnal hasznosítható ipari telephely bérelhető Békéscsabán, stratégiailag kedvező elhelyezkedéssel. Az ingatlan ideális választás gyártási, logisztikai vagy raktározási tevékenységhez. Korábban mezőgazdasági gépkereskedés, illetve szerviz működött benne.

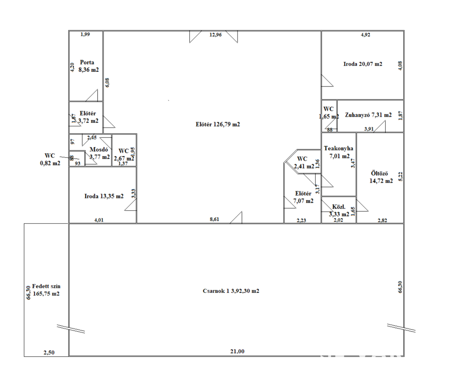
A 9.141 m²-es ipari területen elhelyezkedő telephely összesen 1.660 m² beépített alapterülettel rendelkezik, melyből 1.400 m² csarnokterület áll rendelkezésre. A komplexum része egy szigetelt és egy hideg csarnok, valamint egy különálló, 260 m²-es iroda- és szociális blokk, így a működéshez szükséges teljes infrastruktúra biztosított.

A csarnokok optimális műszaki paraméterekkel bírnak:
• 7,8 m gerincmagasság, 5,3 m vállmagasság
• nagy teherbírású ipari padló (kamionforgalomra alkalmas)
• 3 nagyméretű ipari kapu ( 2db 4m, 1db 5m )
• LED világítás, gázfűtés (radiátor, padló és regiszter)
• hűtés légkondicionálókkal ( 4db )
A telephely körbekerített, kamerarendszerrel és riasztóval védett, jelentős, közel 7.000 m²-es szabad területtel, amely kiválóan alkalmas parkolásra, tárolásra vagy további fejlesztésre.

Lokáció és megközelíthetőség:
• Békéscsaba vasútállomás: 1 km
• M44 autóút: 3 km
• Főutak (44, 47): 3 km

Az ingatlan közműellátottsága is magas minőségű (gáz, ipari és ivóvíz, csatorna, elektromos kapacitás), melyek igény szerint tovább bővíthetők.

Főbb előnyök:
✔ Azonnal birtokba vehető
✔ Rugalmasan alakítható csarnokegységek (min. 120 m²-től)
✔ Elsőrangú közlekedési kapcsolatok
✔ Komplett, működésre kész infrastruktúra
✔ Biztonságos, zárt ipari környezet

Bérleti díj: 2,4MFt/hó + ÁFA
Min. bérleti idő: 12 hónap
Birtokba vétel: akár 1 héten belül

Az ingatlan azonnal működésre kész – ideális választás, ha gyorsan indítaná vagy bővítené vállalkozását. További információkért, kérem, keressen elérhetőségeimen.

Tóth Brigitta
PRÉMIUM

Tóth Brigitta

5 éve a Városi Ingatlaniroda tagja
Ingatlanértékesítő
Békéscsaba
+36 (30) 956 3560
Észrevétel a hirdetéssel kapcsolatban
Egy ingatlanos naplója