Homokterenyén eladó a Hangya ABC!

20088 Nyomtatás Ajánlás Facebook

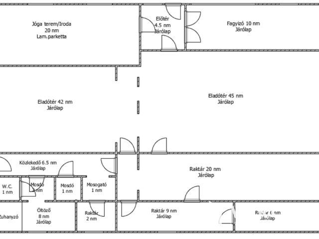
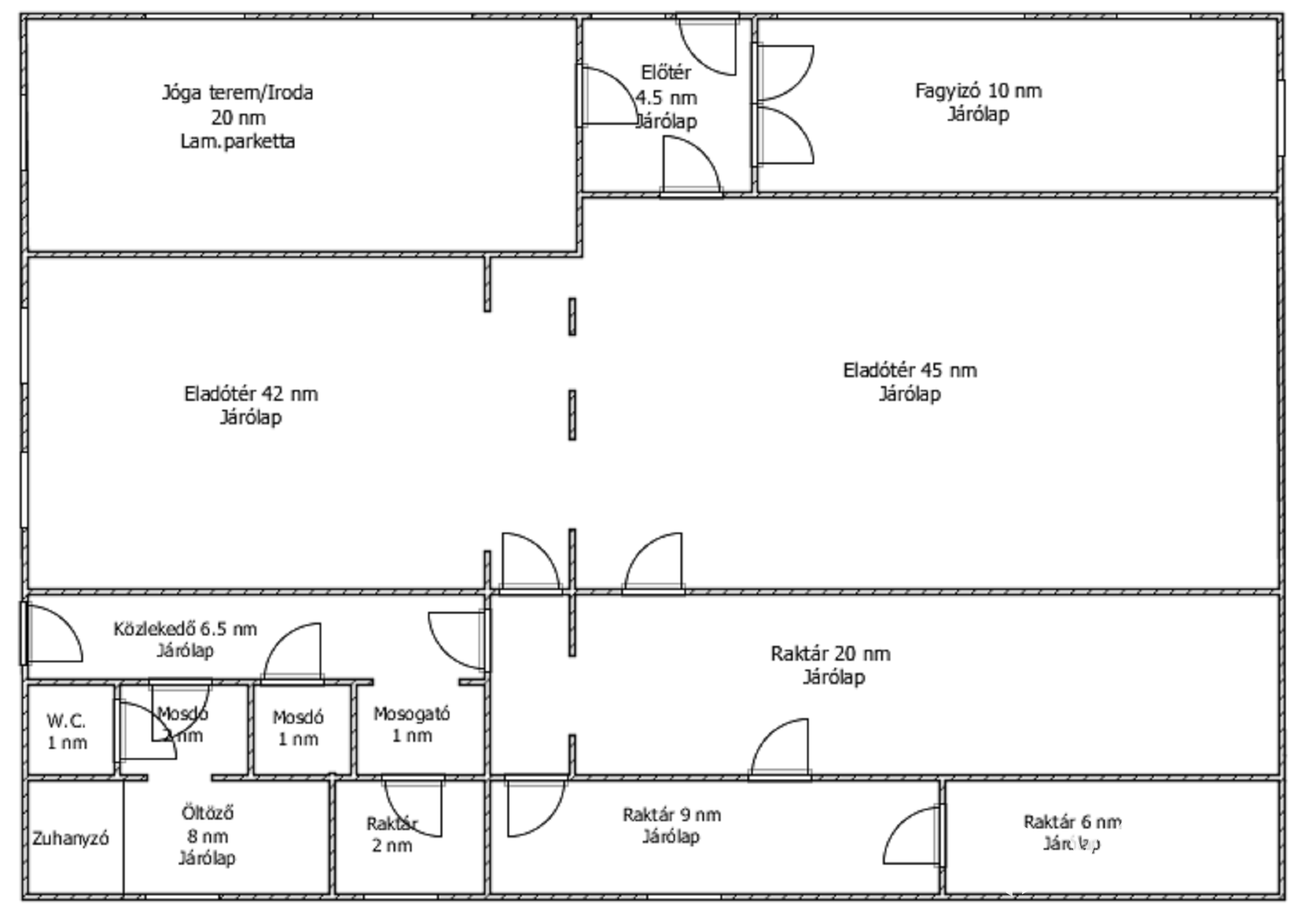
Nógrád megye, Mátraterenye (Homokterenye), főútvonal mellett, 178 nm-es, kiváló állapotú, felújított, tehermentes, azonnal birtokba vehető üzlethelyiség eladó!

A korábban élelmiszerboltként és fagyizóként üzemelő ingatlan, bármely raktározási, termelő, kereskedelmi- és szolgáltató tevékenység végzésére kiválóan alkalmas.

Felújított állapotú, költségmentes, külső szigeteléssel ellátott, előírás szerinti személyzeti helyiségekkel, raktárakkal, rakodási útvonalakkal rendelkezik.

Parkolás az üzlet mellett található parkolóban megoldott.

A közelben számos lakóépület, buszmegálló, horgásztó, polgármesteri hivatal található.

Tatár Tamás
PRÉMIUM

Tatár Tamás

8 éve a Városi Ingatlaniroda tagja
Régióigazgató
Salgótarján
+36 (70) 439 8123
Észrevétel a hirdetéssel kapcsolatban
Egy ingatlanos naplója