Felújítandó családiház - egy telek áráért Pomázon

2014 Nyomtatás Ajánlás Facebook

FELÚJÍTANDÓ CSALÁDI HÁZ - EGY TELEK ÁRÁÉRT !
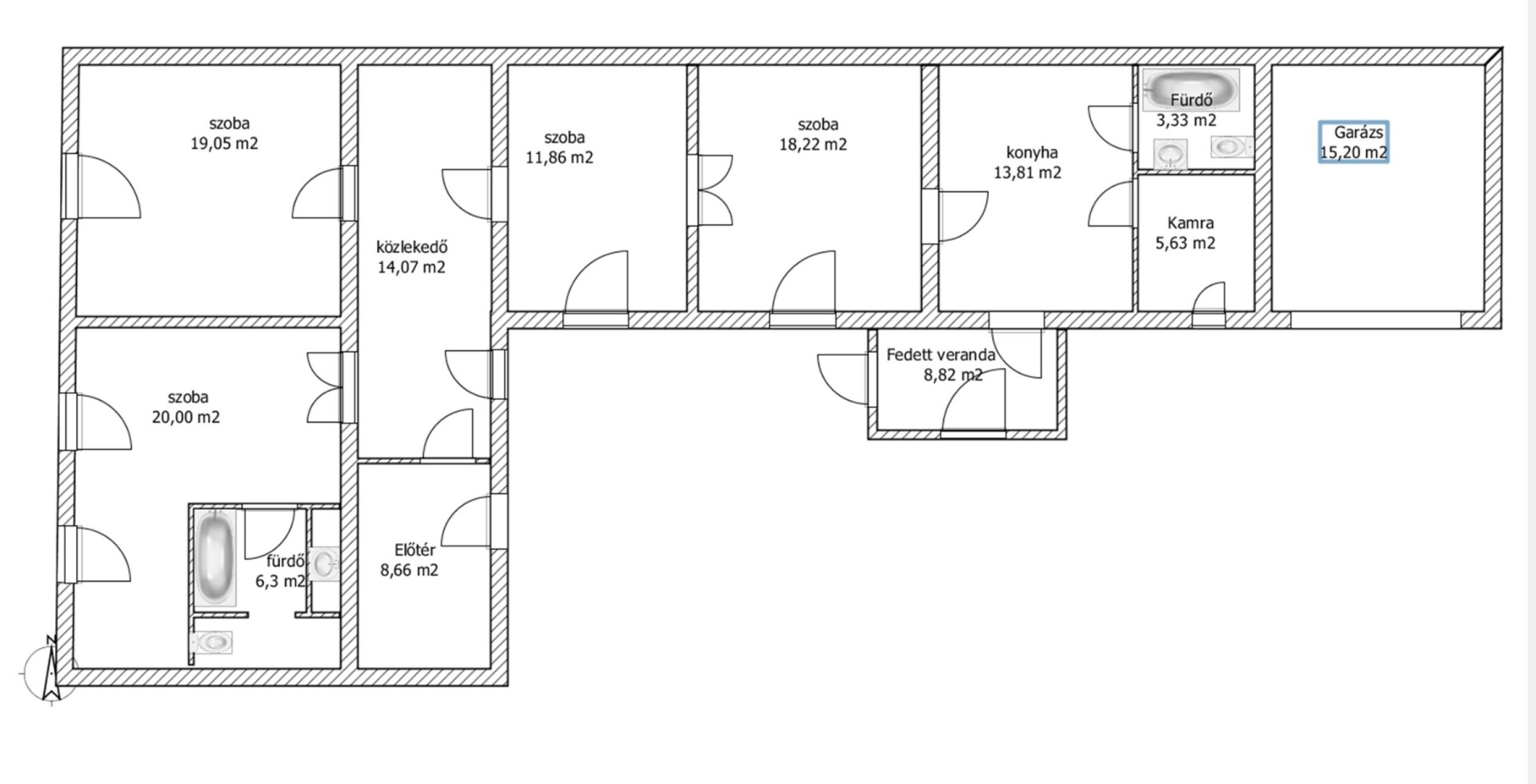
Eladó Pomáz központi részén ,két család részére is alkalmas, de egyben is használható (ekkor dupla gáz és áram rezsicsökkentett kerettel!!) családi ház

Fedezd fel a lehetőséget Pomáz központjában, mindenhez közel lévő leendő új otthonodban!
Ez a 128 m²-es lakótérrel rendelkező családi ház tökéletes választás azok számára, akik szeretnék saját ízlésük szerint kialakítani álmaik otthonát. Az ingatlan egy 569 m²-es telken helyezkedik el, amely bőven kínál teret akár kertészkedéshez, akár szabadtéri kikapcsolódáshoz.

A ház jelenleg teljes felújítást igényel, mely már elkezdődött és az egyik lakótér lakható a felújítás folytatása esetén, így remek lehetőség azoknak, akik szívesen megvalósítanák saját elképzeléseiket a lakberendezés és felújítás terén. Az ingatlanban három tágas szoba található, amelyek ideálisak családok számára. A kényelmet tovább növeli a nappali, ahol kellemes perceket tölthet el a család, valamint két fürdőszoba éjszakai áramos villanyboylerrel, amelyek kényelmes mindennapokat biztosítanak.
A tetőtér igény esetén beépíthető, melyre kiviteli tervek már léteznek és átadhatóak.
A radiátoros fűtőtesteket gáz cirkóval is, de igény esetén vegyestüzelésű kazánnal is működtetni lehet.

Pomáz városának kiváló infrastruktúrája és közlekedési kapcsolatai révén az elhelyezkedés ideális választás azoknak, akik a nyugalmas környezetet részesítik előnyben, de mégis közel szeretnének maradni Budapesthez.
Az ingatlan tehermentes, azonnal birtokba vehető.

Az ingatlan megvásárlásához Otthon start hitel is felvehető.
Teljes körű, díjmentes segítséget nyújtunk a hitelügyintézésben.
Megvizsgáljuk hitelképességét, eligazítjuk a lehetőségek között és személyre szabott ajánlatokat kérünk Önnek, olyan feltételekkel, amelyeket a bankban egyedül biztosan nem kapna meg.
Önnek mindössze annyi dolga marad, hogy a végén aláírja a szerződést.

Ne hagyja ki ezt a remek lehetőséget, hogy megalkothassa álmai otthonát! További információért és megtekintésért keressen bizalommal!
IRÁNYÁR: 57.000.000,-Ft mely korlátozottan alkuképes.
További részletekért, Külső képekért, megtekintési időpontért keressen bizalommal a fenti elérhetőségeken (bármikor hívhat! hétvégén és ünnepen is)+36 30 916 2201

Borsi Péter

Borsi Péter

Ingatlanértékesítő
Piliscsaba
+36 (30) 916 2201
Észrevétel a hirdetéssel kapcsolatban
Egy ingatlanos naplója