Első emeleten, teljesen felújított lakásTapolcán eladó

32 Nyomtatás Ajánlás Facebook

Eladó igényesen felújított tégla lakás Tapolca egyik leg élhetőbb városrészén, a Dobó István-lakótelepen!

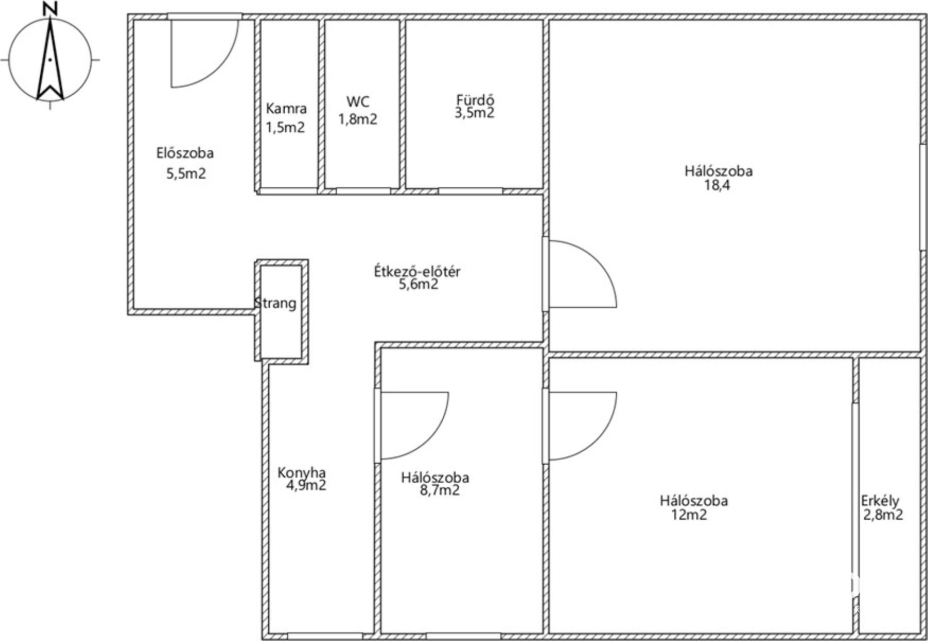
Ez a 62 m²-es, teljesen felújított lakás a 4 szintes épület egyik kiemelkedő ékszere. A lakás tágas és világos elrendezéssel büszkélkedhet, amely 3 kényelmes szobával várja új tulajdonosát. A prémium anyagok felhasználásával készült felújítás során új nyílászárók kerültek beépítésre, biztosítva az energiahatékonyságot és a csendes, nyugodt légkört.

Az ingatlan alacsony fenntartási költségekkel rendelkezik, köszönhetően a teljes külső hőszigetelésnek és a modern villamoshálózatnak. Az egyedi tervezésű fürdőszoba és a különálló WC további kényelmet biztosítanak a mindennapokban.

A lakáshoz tartozó erkélyről csodálatos kilátás nyílik a zöld övezetre, tökéletes helyszín reggeli kávézásokhoz vagy esti pihenésekhez. A környék infrastrukturálisan kiváló: jó közlekedési kapcsolatokkal rendelkezik, így a város bármely pontja könnyen elérhető.

Ne hagyja ki ezt a páratlan lehetőséget, hogy otthonává váljon ez a minden igényt kielégítő lakás Tapolca egyik legjobb részén! További információért és megtekintésért keressen bátran!

Sibak András

Sibak András

Ingatlanértékesítő
Tapolca
+36 (70) 533 0069
Észrevétel a hirdetéssel kapcsolatban
Egy ingatlanos naplója