Eladó új építésű földszintes ikerház Őrbottyán területén

945 Nyomtatás Ajánlás Facebook

Eladó új építésű ikerház Őrbottyán csendes, idilli környékén!

Őrbottyán kedvelt, csendes kertvárosi részén, eladó egy modern, energiatakarékos, új építésű földszintes ikerház.

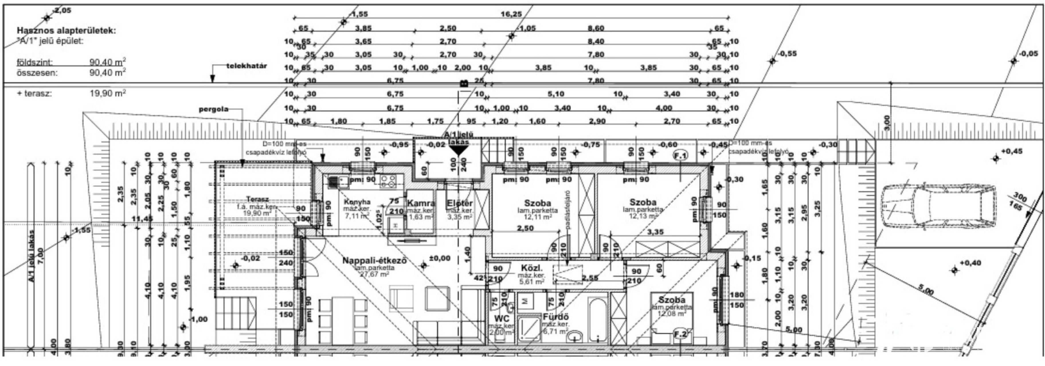
A 90 m² lakóterülettel rendelkező nappali + 3 hálószobás kialakítású ingatlan egy tágas, jól élhető 394 m²-es saját telken helyezkedik el.

A ház elosztása kiváló: amerikai konyhás nappali szolgál a családi élet központjaként. A nyugodt pihenést három teljes értékű hálószoba biztosítja és emellett kádas fürdőszoba, külön WC, kamra, előszoba és széles közlekedők növelik a komfortérzetet.
A 20 m²-es terasz ideális helyszíne lehet a pihenésnek és a családi összejöveteleknek.

A műszaki tartalom magas színvonalú: 30 cm-es téglafalazat 12 cm hőszigeteléssel, háromrétegű, fehér hőszigetelt nyílászárók, hőszivattyús fűtési rendszer padlófűtéssel, valamint klíma előkészítés biztosítja az alacsony fenntartási költségeket és a korszerű komfortot. A belső burkolatok és a beltéri ajtók még szabadon választhatók a műszaki tartalomban meghatározott összeghatárig, így az új tulajdonos saját ízlésére formálhatja az otthon hangulatát.

A környék infrastruktúrája kiváló: a vasútállomástól a Nyugati pályaudvar körülbelül 30 perc alatt megközelíthető. A közelben buszmegálló, élelmiszerboltok, pékség, posta, gyógyszertár található, valamint bölcsőde, óvoda, iskola és játszótér is sétatávolságra van, ami különösen ideálissá teszi az ingatlant úgy fiatal, mint idősebb családok számára.

Az ingatlan megvásárlásához kedvezményes finanszírozási lehetőségek elérhetők el, mint az Otthon Start hitel, CSOK stb.
A várható átadás 2026 tavasza, így még időben lefoglalható és személyre szabható ez a modern, hosszú távra tervezett családi otthon.

Amennyiben a vásárláshoz hitelre van szüksége, bankfüggetlen hiteltanácsadással is állunk rendelkezésére .
Kérdés vagy megtekintési szándék esetén készséggel állok rendelkezésére.
Az ingatlan a hét bármely napján, előre egyeztetett időpontban megtekinthető.

Newly built semi-detached house for sale in the quiet, idyllic surroundings of Őrbottyán!

In the popular, quiet suburban area of ​​Őrbottyán, a modern, energy-efficient, newly built ground-floor semi-detached house is for sale.

The property with a living room of 90 m² + 3 bedrooms is located on a spacious, livable 394 m² private plot.

The layout of the house is excellent: a living room with an American kitchen serves as the center of family life. Three full bedrooms ensure peaceful relaxation, and a bathroom with a bathtub, a separate toilet, a pantry, anteroom and wide corridors increase the feeling of comfort.

The 20 m² terrace can be an ideal place for relaxation and family gatherings.

The technical content is of a high standard: 30 cm brickwork with 12 cm thermal insulation, three-layer, white thermally insulated windows and doors, a heat pump heating system with underfloor heating, and air conditioning preparation ensure low maintenance costs and modern comfort. The interior coverings and interior doors can still be freely chosen up to the amount specified in the technical content, so the new owner can shape the atmosphere of the home to his own taste.

The infrastructure of the area is excellent: the train station can be reached from the Nyugati railway station in about 30 minutes. There is a bus stop, grocery stores, bakery, post office, pharmacy nearby, and a nursery, kindergarten, school and playground are also within walking distance, which makes the property particularly ideal for both young and older families.

Discounted financing options are available for purchasing the property, such as the Otthon Start loan, CSOK, etc.
The expected delivery is spring 2026, so this modern, long-term family home can still be reserved and personalized in time.

If you need a loan for the purchase, we are also available with bank-independent credit advice.
I am happy to assist you with any questions or viewing requests.
The property can be viewed any day of the week, at a pre-arranged time.

Szőcs Viola

Szőcs Viola

Ingatlanértékesítő
Dunakeszi
+36 (30) 401 9689
Észrevétel a hirdetéssel kapcsolatban
Egy ingatlanos naplója