Az év szállása eladó! Apartmanház a fürdő mellett

2241 Nyomtatás Ajánlás Facebook

Eladó egy páratlan adottságokkal rendelkező, teljesen felújított apartmanház Gyula városának népszerű Fürdőövezet városrészében!

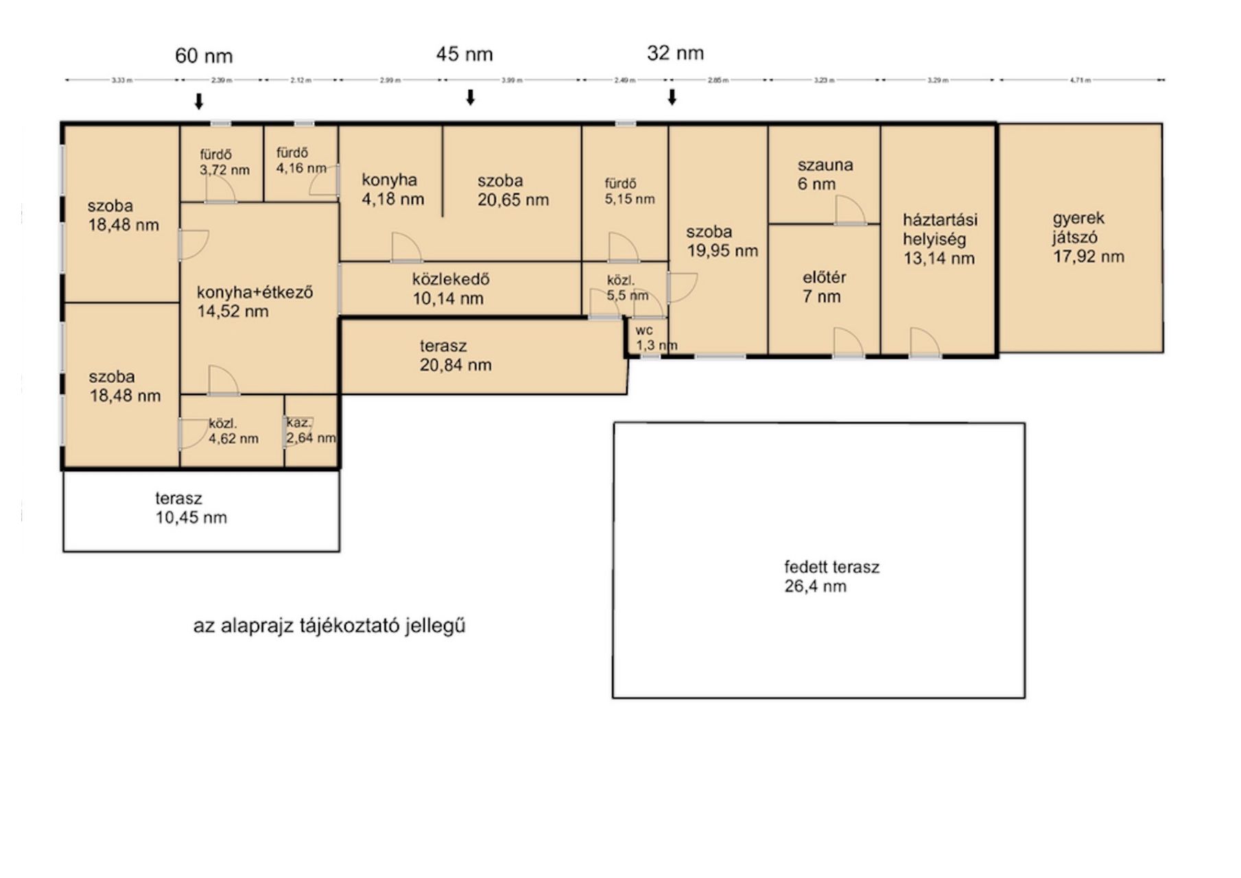
Az ingatlan 163 m²-es lakóterülettel és 1200 m²-es telekmérettel rendelkezik, így tágas és kényelmes életteret biztosít új tulajdonosának.

Az apartman négy szobával és három fürdőszobával, minden egységben külön konyharésszel, szaunával, tágas fedett terasszal kerti grillezővel várja lakóit, összesen 12 férőhellyel rendelkezik, mely pótágyakkal tovább bővíthető. A szálláshely az évek során folyamatosan kiváló (10, 9.9) értékelésekkel rendelkezik, néhány éve elnyerte az év szállása minőségdíjat is.

Az ingatlan 2008-ban teljeskörű felújításon esett át, melynek keretében:
- megtörtént az aljzat szigetelése, valamint a falak is 10 cm-es külső hőszigetelést kaptak
- cserélve lettek a víz- és villanyvezetékek
- gázkazánról működtetett radiátorfűtés került kialakításra
- új külső nyílászárók és bejárati ajtó került beépítésre (ablakok redőnnyel és szúnyoghálóval ellátva)
- a nyári kellemes hőérzet biztosítására klíma berendezések kerültek elhelyezésre
- riasztó és kamerarendszer lett kialakítva

A tágas kertben a fedett terasz és gyermekjátszó mellett egy filagória is megtalálható, melyben szalonnasütő és grillező is ki lett alakítva. A duplatelken egy kertitó és számos dísznövény is helyet kapott, ez utóbbi öntözése fúrott kútról működtetett öntözőrendszerrel megoldott. Emellett 8 autó számára alkalmas beálló is kialakításra került. A telek méretéből adódóan igénytől függően további beépítésre is lehetőség van.

A csendes utcában elhelyezkedő ingatlan kiváló közlekedési kapcsolatokkal rendelkezik, így a nyugalom mellett a városi élet is könnyen elérhető. A Várfürdő bejárata mindössze 350 méterre található, de a belváros is kényelmes sétával elérhető.

További extrák közé tartozik a szauna, mely a maximális relaxációt biztosítja a vendégek számára.

A szálláshely visszatérő vendégkörrel rendelkezik, az irányár tartalmazza a teljes bútorzatot és felszerelést. Az ingatlan a működtető céggel együtt eladó.

Ez az ingatlan ideális választás mindazok számára, akik magas színvonalú szálláshelyet szeretnének üzemeltetni és nem szeretnének a vendégszerzéssel bajlódni. Ne hagyja ki ezt a ritka alkalmat, hívjon most, és tekintse meg személyesen!

Dr. Folczné Szentléleki Enikő
PRÉMIUM

Dr. Folczné Szentléleki Enikő

Karrierigazgató
Gyula
+36 (20) 392 2660
Észrevétel a hirdetéssel kapcsolatban
Egy ingatlanos naplója