„4 külön szoba,de igény szerint akár 6 szobássá alakítható.”

1706 Nyomtatás Ajánlás Facebook

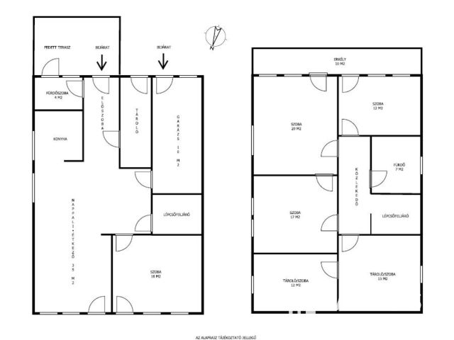
Eladó tágas családi ház Tamási központjában, nagy telekkel

Tamási közkedvelt, központi részén kínálunk eladásra egy 200 m²-es, tágas családi házat, mely egy 1270 m²-es telken helyezkedik el. Az ingatlan ideális választás mindazok számára, akik kényelmes, jól alakítható otthont keresnek kiváló elhelyezkedéssel.
A telek mérete és adottságai kiváló lehetőséget biztosítanak kertészkedésre vagy pihenésre. A kertben több gyümölcsfa is található (cseresznye, meggy, barack, szilva).

Főbb jellemzők

B30-as Porotherm tégla falazat
beton födém
új nyílászárók (ablakok, bejárati ajtók)
tetőszigetelés
napkollektor
ipari áram
4 db hűtő-fűtő klíma
házközponti fűtés
elektromos kapu
kb. 10 m² pince
márciusi villanyszámla 1660 Ft volt

Elrendezés:

4 kényelmes szoba
tágas nappali ( 35nm)
2 fürdőszoba
tetőtéri tárolók, amelyből további 2 szoba kialakítható kis ráfordítással.

Egyéb:

Az ingatlan mellett több, tárolásra alkalmas melléképület található, amelyek tovább növelik a praktikumot.

Állapot:

A ház átlagos állapotú, ugyanakkor kiváló alapot biztosít egyéni elképzelések megvalósításához.

Elhelyezkedés:

Központi fekvésének köszönhetően minden fontos intézmény – iskola, üzletek, közlekedési lehetőségek – könnyen elérhető.

Kapcsolat:
Ne hagyja ki ezt az egyedülálló lehetőséget! Amennyiben felkeltette érdeklődését az ingatlan, keressen bizalommal további információért vagy megtekintés egyeztetése céljából.

Spacious family house for sale in the center of Tamási, with a large plot

In the popular, central part of Tamási, we offer for sale a 200 m², spacious family house, located on a 1270 m² plot. The ideal choice for all those who are looking for a comfortable, easily adaptable home with an excellent location.
The size and features of the plot provide excellent opportunities for gardening or relaxation. There are several fruit trees in the garden (cherry, sour cherry, peach, plum).

Main features

B30 Porotherm brick masonry
concrete slab
new doors and windows (windows, entrance doors)
roof insulation
solar collector
industrial electricity
4 cooling-heating air conditioners
central heating
electric gate
approx. 10 m² basement

Layout:

4 comfortable rooms
spacious living room (35sqm)
2 bathrooms
attic storage, from which 2 more rooms can be created with little effort.

Other:

There are several outbuildings next to the property, suitable for storage, which further increases the practicality.

Condition:

The house is in average condition, providing an excellent basis for implementing individual ideas.

Location:

Its central location makes all important institutions – schools, shops, transport options – easily accessible.

Contact:
Don't miss this unique offer! If you are interested in the property, please contact us for more information or to arrange a viewing.

"Have a friend"

Dér Attila

Dér Attila

Ingatlanértékesítő
Siófok
+36 (30) 339 6019
Észrevétel a hirdetéssel kapcsolatban
Egy ingatlanos naplója